Mini painel de ferramentas portátil
Publicado em 20 de Agosto de 2025 às 14:22
Painel de ferramentas apenas de madeira, que pode ser transportado como se fosse uma caixa de ferramentas, e não utiliza pregos nem parafusos em sua construção, consegue manter suas ferramentas organizadas, e ainda é bastante customizável para atender a necessidade de guardar uma grande variedade de peças e foi inspirado no painel portátil utilizado por Adam Savage do “MythBusters”
Materiais Necessários
- Folha de lixa nº120 para madeira (ou para lixadeira que for usar)
- Palito de churrasco 4mm de diâmetro
- Fita crepe 24mmx50m
- Cola de madeira
- Cabo de vassoura
- 2,2mx40cm de madeira 10mm (Ou madeirite 10mm)
- 40 cm de cano de PVC 20mm
- Seladora para madeira
Ferramentas Necessárias
- Esquadro de carpinteiro
- Régua 1m
- Furadeira à bateria (facilita o manuseio)
- Limitador de broca (ou caneta para versão caseira)
- Mini arco de serra 12”
- Broca 4mm para madeira
- Broca chata 22mm (7/8”)
- Brocas para madeira de tamanhos variados
- Marcador de cavilha (ou “alfinete taça” para versão caseira)
- Pincel 2"x50mm
- Serra tico tico, com lâmina para corte de madeira
- Serra circular, com disco para corte de madeira
- Lixadeira orbital, com lixa nº120 para madeira
- Marreta de borracha/Malho de madeira
- Grosa
Etapas
Preparando as peças:
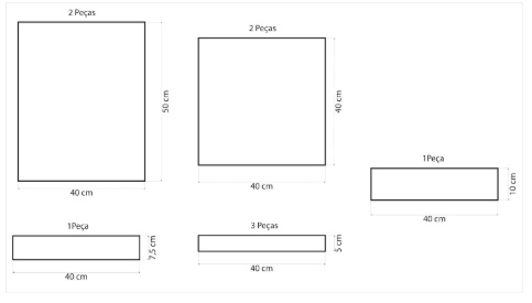
-
Meça e risque no compensado as peças descritas na imagem abaixo:
Utilize régua e esquadro para estas marcações, evitando linhas inclinadas que podem atrapalhar a montagem.
- Corte as peças nas marcações utilizando alguma serra que tenha a disposição. A mais adequada para efetuar cortes muito longos (caso você tenha uma peça muito grande de compensado) é a serra circular de bancada, mas é possível conseguir um bom resultado utilizando uma serra tico-tico.
- *(dica): lembre-se de deixar os dois lados da madeira a ser cortada apoiados, assim nenhuma das partes vai cair enquanto você corta, o que pode estragar o corte. Lembre-se também de não deixar o fio na “frente” do sentido de corte da serra tico tico, evite acidentes!
Conclusão
Toda a colagem, com cola branca e cavilhas, das peças de madeira pode ser substituída por cola quente, se preferir. Assim a fixação das peças fica mais simples e rápida. Mas cuidado com o acabamento! Ele não fica tão agradável quanto o descrito no tutorial.
Incentivamos as “customizações” neste projeto! Você pode adicionar mais suportes internos e até suportes nas laterais! Mas cuidado para não criar um pequeno mostro difícil de carregar, aí ele não será tão portátil.

Comentários
0